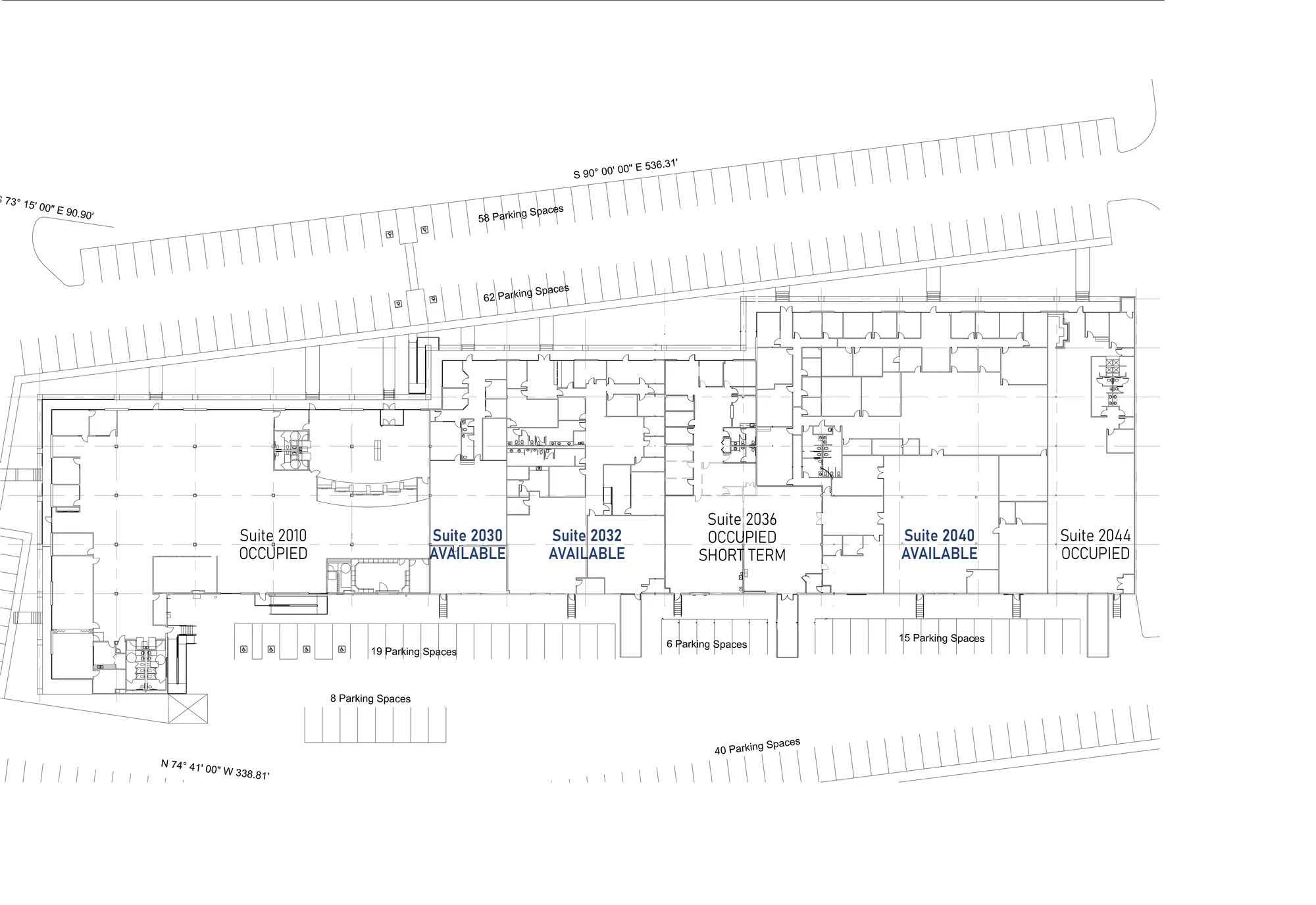
North Ridge Tech Center
Executive Summary
This property is situated on North State Highway 360. The property is within 20 miles from both DFW Airport and Love Field Airport. Hwy 360, is a main corridor road leading into the Arlington, Dallas, and DFW markets. This sublease would best fit a tenant that requires an office/warehouse layout.
This property is situated on North State Highway 360. The property is within 20 miles from both DFW Airport and Love Field Airport. Hwy 360, is a main corridor road leading into the Arlington, Dallas, and DFW markets. This sublease would best fit a tenant that requires an office/warehouse layout.
- Sublease space available from current tenant
- Space is in excellent condition
- Great location
- Dock high loading
- Near Love Field Airport
- Lease rate doe not include utilities, property expenses, or building services
- Central air and heating
- Short term sublease
- Office/warehouse layout
- Near DFW Airport
- Space is in excellent condition
- Great location
- Dock high loading
- Near Love Field Airport
- Lease rate doe not include utilities, property expenses, or building services
- Central air and heating
- Short term sublease
- Office/warehouse layout
- Near DFW Airport
In Dallas
Total Building (SF) |
69650
Sale Price Per/SF |
Negotiable
County
Dallas
Dallas
Request More Information

